Hoovimaja · 2. korrus
Korter
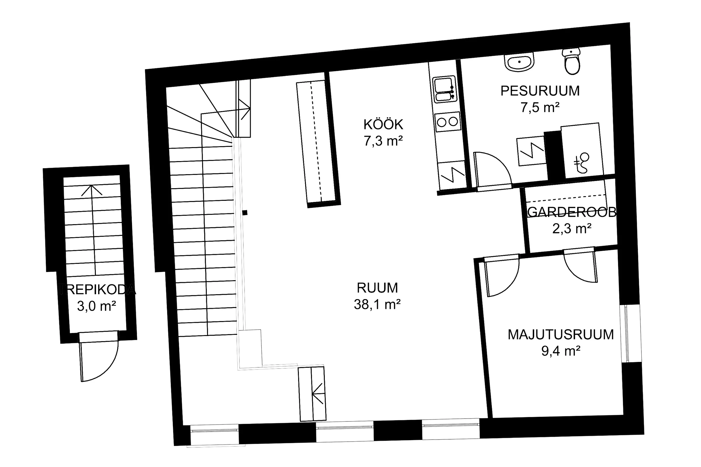
Korteri ruumide jaotus
Korteri asukoht hoonel
Hoovimaja
2. korrus
Kontakt
Võta ühendust ja broneeri tutvustav külastus