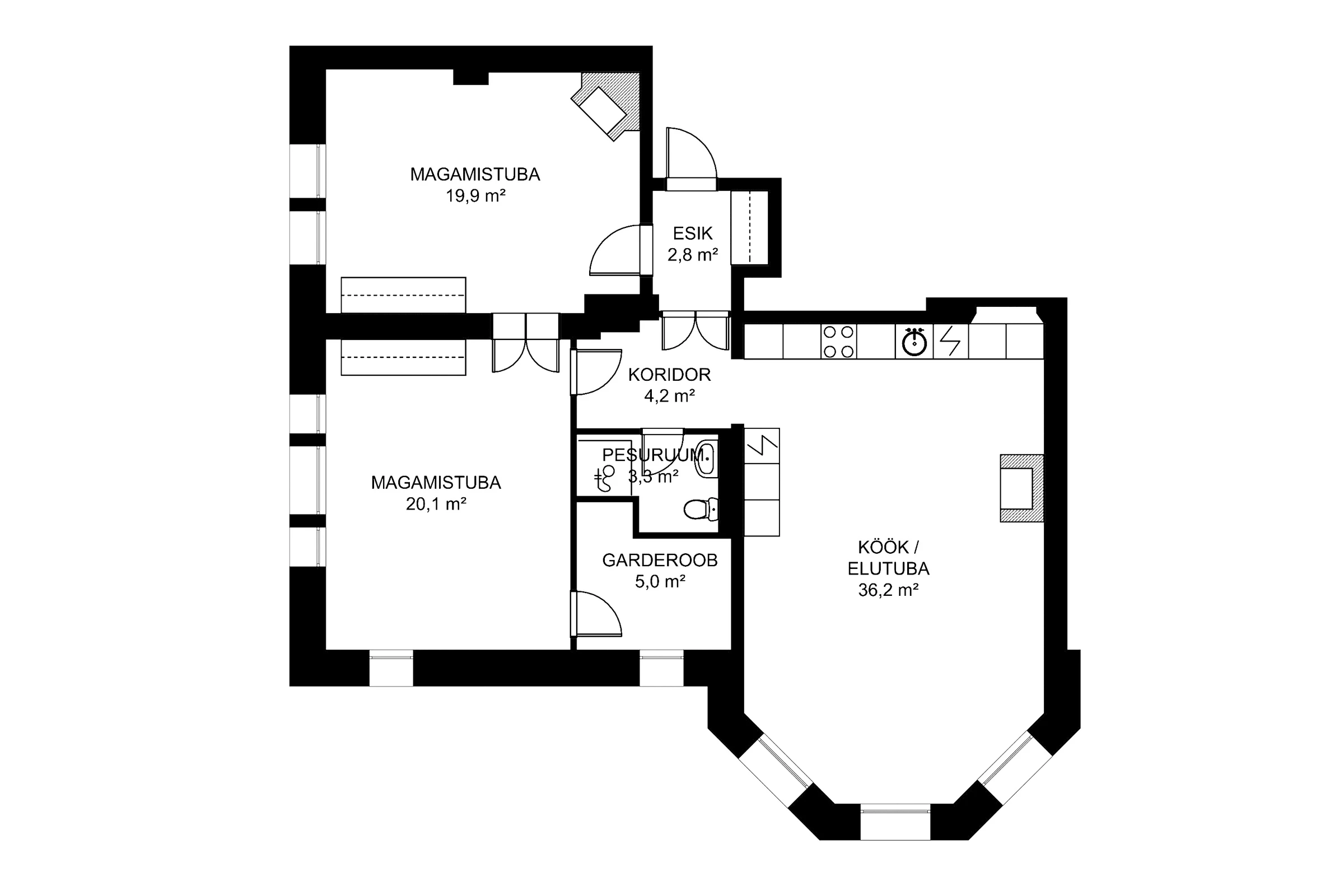
Villa Doll · 2. korrus
Korter
Korteri ruumide jaotus
Korteri asukoht hoonel
Villa Doll
2. korrus
3. korrus
Kontakt
Võta ühendust ja broneeri tutvustav külastus