Villa Doll · 2. korrus
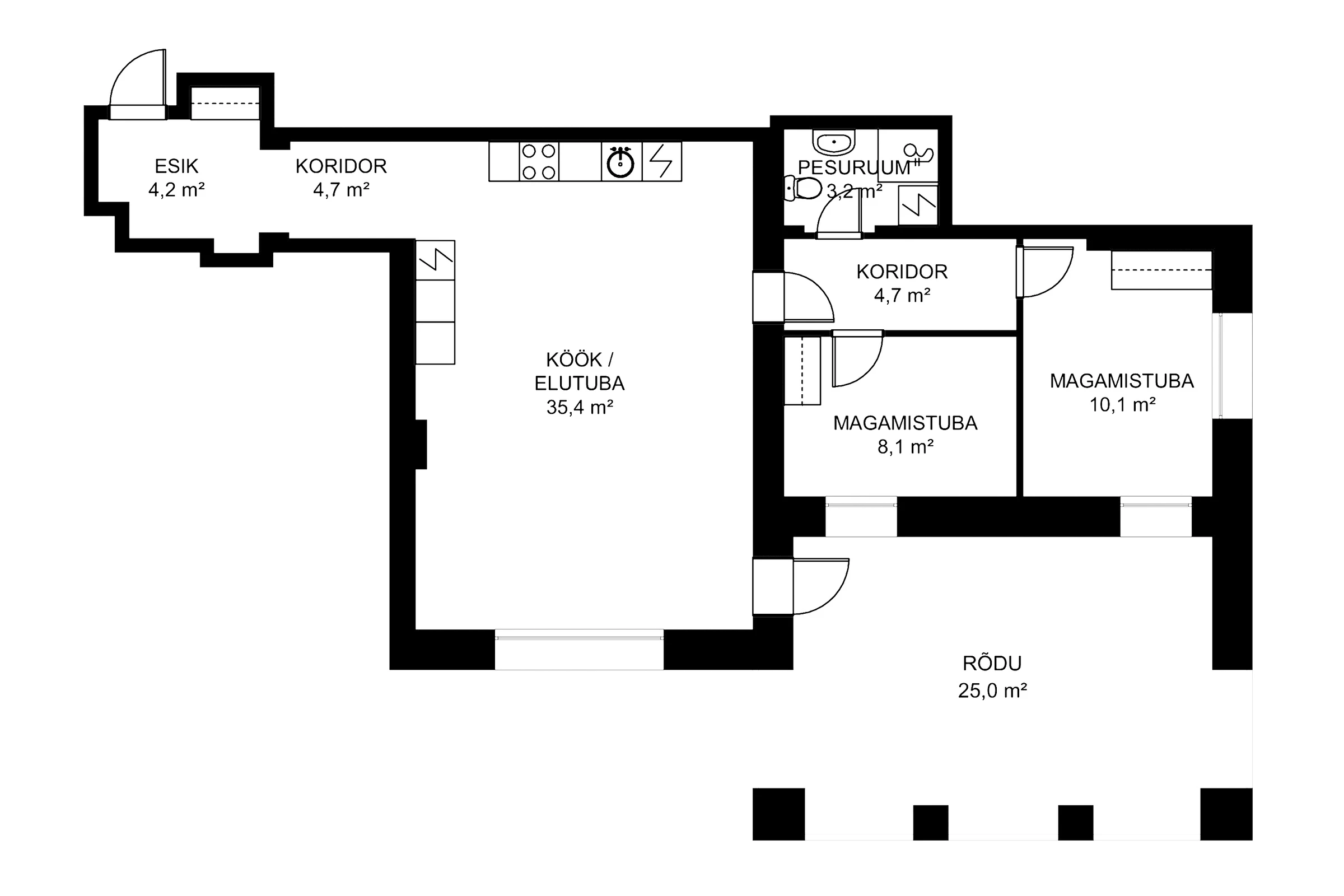
Korter
Suure rõduga
Korteri ruumide jaotus
Korteri asukoht hoonel
Villa Doll
2. korrus
3. korrus
Kontakt
Võta ühendust ja broneeri tutvustav külastus